Saint-Côme QC, J0K 2B0
Remarks:
Construction neuve au style chalet moderne, offrant de vastes espaces lumineux avec fenestration abondante et vues imprenables sur les montagnes. Aire ouverte spectaculaire avec foyer central, cuisine conviviale et garde-manger walk-in. Trois grandes chambres au sous-sol, planchers et céramique chauffants, deux salles de bain complètes. Grand balcon avec rampe vitrée couvrant le rez-de-jardin. À deux pas de Val-Saint-Côme -- location court terme permise (Airbnb). Un produit clé en main, aussi beau que rentable
Située sur le chemin de l'Altitude à Saint-Côme, cette propriété de construction neuve offre un équilibre remarquable entre design moderne et chaleur typique du chalet.
Dès l'entrée, on est frappé par les volumes généreux, la fluidité des espaces et une fenestration abondante qui inonde la maison de lumière naturelle tout en offrant des vues spectaculaires sur les montagnes. L'aire de vie est ouverte, aérée et parfaitement pensée pour recevoir et profiter pleinement du cadre naturel.
Le rez-de-chaussée se distingue par un superbe foyer central, véritable point d'ancrage de l'espace, ainsi qu'un garde-manger walk-in très apprécié au quotidien.
À l'avant, un grand balcon avec rampe vitrée prolonge l'espace de vie et couvre également le rez-de-jardin, ajoutant à la fois confort et élégance.
Le sous-sol propose trois chambres de très belles dimensions, une salle familiale ou espace séjour, ainsi qu'un confort optimal grâce aux planchers chauffants. Les deux salles de bain complètes sont dotées de céramique chauffante, soulignant la qualité de la construction et l'attention portée aux détails.
À proximité immédiate de la Station de ski Val-Saint-Côme, la propriété bénéficie d'un emplacement stratégique, autant pour une résidence principale que pour un investissement.
* Location à court terme (Airbnb) permise
* Construction de qualité supérieure
* Cadre naturel recherché et vues imprenables
Une propriété clé en main, élégante et chaleureuse, qui coche toutes les cases -- autant pour le plaisir que pour la rentabilité.»
Inclusions: Thermopompe murale, aspirateur central, borne de recharge pour véhicule électrique, four, réfrigérateur, laveuse et sécheuse, échangeur d'air, fixture, luminaire, sum pump, Filage électrique extérieur pour futur SPA, rangement des garde-robe, banc dans l'entrée.
Exclusions : Tables de cuisine et ses chaises.
Building Features:
- Style: Detached
- Basement: 6 feet and more, Finished basement
- Bathroom: Separate shower
- Distinctive Features: No rear neighbours
- Driveway: Unpaved
- Fireplace-Stove: Gas fireplace
- Foundation: Poured concrete
- Kitchen Cabinets: Other, Melamine
- Lot: Wooded
- Parking: Driveway
- Property or unit amenity: Central vacuum cleaner system installation, Level 2 charging station, Air exchange system, Wall-mounted heat pump
- Proximity: Highway, Golf, Elementary school, Alpine skiing, Cross-country skiing, Snowmobile trail, ATV trail
- Roofing: Asphalt shingles
- Siding: Other
- Topography: Sloped, Flat
- View: View of the mountain
- Window Type: Casement, French door
- Windows: PVC
- Heating System: Electric baseboard units, Radiant
- Heating Energy: Electricity
- Water Supply: Artesian well
- Sewage System: Disposal field, Septic tank
Taxes:
- Municipal Tax: $0
- School Tax: $0
- Annual Tax Amount: $0
Property Features:
- Bedrooms: 0+3
- Bathrooms: 2
- Built in: 2025
- Lot Frontage: 66.32 Metre
- Lot Size: 3674.50 Square Metres
- Zoning: RESI
- No. of Parking Spaces: 3
Rooms:
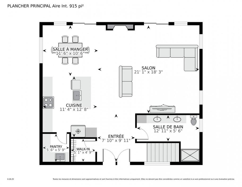
- Foyer Ground Level 3.28 m x 3.35 m 10.9 ft x 11 ft Flooring: Ceramic
- Walk-in Closet Ground Level 1.55 m x 1.45 m 5.1 ft x 4.9 ft Flooring: Ceramic
- Living Ground Level 6.43 m x 5.56 m 21.1 ft x 18.3 ft Flooring: Wood
- Dining Ground Level 3.51 m x 3.20 m 11.6 ft x 10.6 ft Flooring: Ceramic
- Kitchen Ground Level 3.45 m x 3.86 m 11.4 ft x 12.8 ft Flooring: Ceramic
- Bathroom Ground Level 3.94 m x 1.68 m 12.11 ft x 5.6 ft Flooring: Ceramic
- Other Ground Level 1.68 m x 1.75 m 5.6 ft x 5.9 ft Flooring: Wood
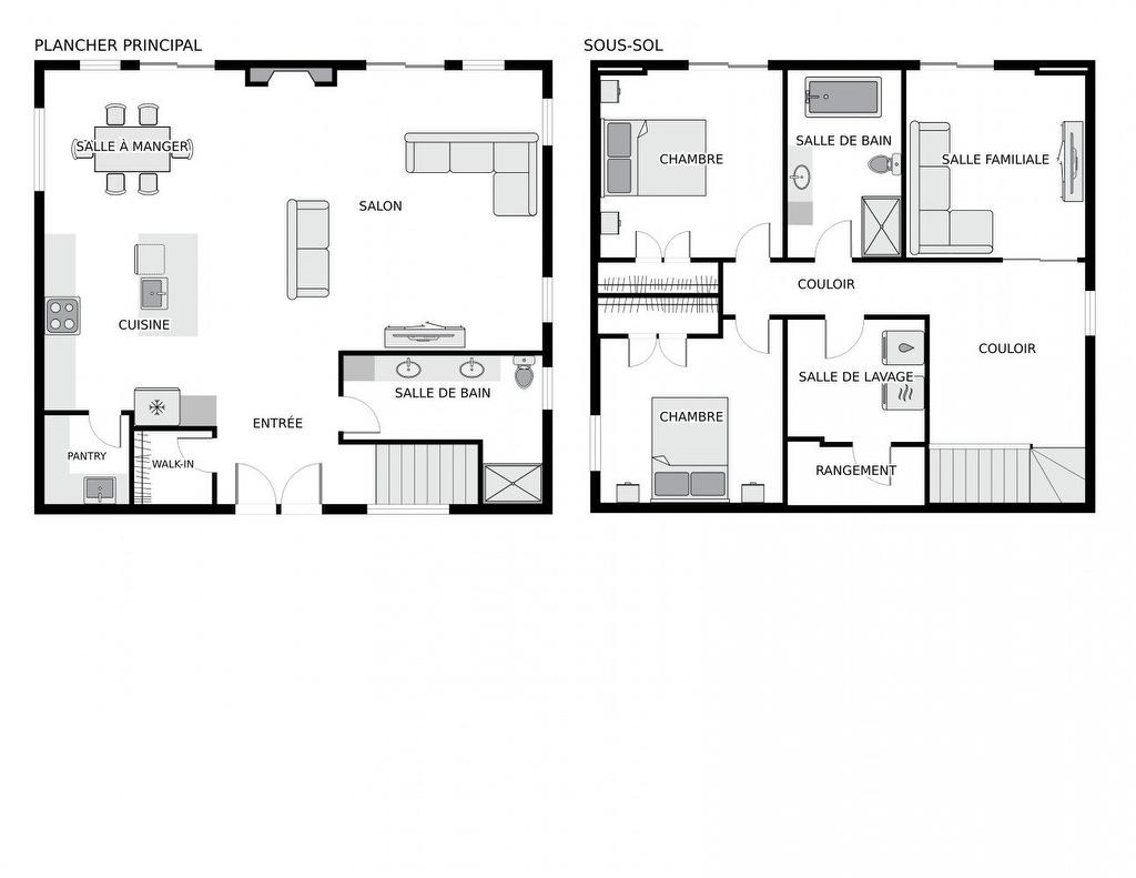
- Family Basement Level 3.56 m x 3.71 m 11.8 ft x 12.2 ft Flooring: Concrete
- Bedroom Basement Level 3.07 m x 3.61 m 10.1 ft x 11.10 ft Flooring: Concrete
- Primary Bedroom Basement Level 3.61 m x 3.71 m 11.10 ft x 12.2 ft Flooring: Concrete
- Bedroom Basement Level 3.61 m x 3.25 m 11.10 ft x 10.8 ft Flooring: Concrete
- Bathroom Basement Level 2.24 m x 3.71 m 7.4 ft x 12.2 ft Flooring: Concrete
- Laundry Basement Level 2.72 m x 2.41 m 8.11 ft x 7.11 ft Flooring: Concrete
- Storage Basement Level 2.72 m x 1.12 m 8.11 ft x 3.8 ft Flooring: Concrete
Convert Measurement to:
Data provided by: Centris - 600 Ch Du Golf, Ile -Des -Soeurs, Quebec H3E 1A8
All information displayed is believed to be accurate but is not guaranteed and should be independently verified. No warranties or representations are made of any kind. Copyright© 2021 All Rights Reserved.
Market Price Trends
Location of 140 Ch. de l'Altitude, Saint-Côme, QC, J0K 2B0
Demographic Information of 140 Ch. de l'Altitude, Saint-Côme, QC, J0K 2B0
Life Stage
Midlife FamiliesEmployment Type
Blue Collar/Primary, Blue Collar/Service SectorAverage Household Income
$89,000.00Average Number of Children
1.70Household Population
Household Structure
Age of Population
Education
Education Level
No certificate/diploma/degree
24.17 %High school certificate or equivalent
29.17 %Apprenticeship trade certificate/diploma
18.33 %College/non-university certificate
15.0 %University certificate (below bachelor)
2.5 %University Degree
10.83 %Commuter
Travel To Work
By Car
94.29 %By Public Transit
0.0 %By Walking
0.0 %By Bicycle
0.0 %By Other Methods
5.71 %Cultural Diversity
Knowledge of Official Language
Mother Tongue
Building Information
Building Type
Apartments (Low and High Rise)
Houses
100.0 %
































































