Prévost QC, J0R 1T0
Property Information:
Discover this stunning bungalow located in the prestigious Jack Rabbit project in Prévost. Featuring 2 bedrooms, including a primary suite with a walk-in closet and en-suite bathroom, this modern Scandinavian-style home is bathed in natural light thanks to its large rear windows. Enjoy a warm living space with a central living room and a practical double garage. Ideal for those seeking comfort and elegance in an exceptional natural setting. Contact us for more information!
Grandmaison Model -- Scandinavian Elegance in the Heart of the Laurentians
Located in the prestigious Domaine des Patriarches in Prévost, this bungalow is part of the exclusive Jack Rabbit project. Combining modernity, timeless charm, and a prime location, it offers a peaceful and refined living environment at the heart of nature.
Key Features:
2 bright bedrooms, including a primary suite with a full en-suite bathroom and a spacious walk-in closet.
Large rear windows that flood the home with natural light, creating a warm and welcoming atmosphere.
A central living room, designed for social moments, combining modern design and Scandinavian ambiance.
A functional kitchen, open to the dining area, ideal for hosting and sharing meals with family and friends.
A double integrated garage, offering convenience and additional storage space.
An unfinished basement, with the potential to add two additional bedrooms, allowing you to customize the space to suit your needs.
A Dream Location:
Nestled between Saint-Jérôme and Piedmont, this property offers easy access to a wide range of outdoor activities, including alpine skiing, cross-country skiing, snowmobile trails, mountain biking, and more. Despite being immersed in nature, it remains close to essential services and amenities.
The Jack Rabbit Project: A Magical Place
Living in the Jack Rabbit project goes beyond just having a home. It's the realization of a dream where every detail has been carefully considered to blend design, functionality, and harmony with nature. Strict architectural standards and environmental preservation ensure an exceptional quality of life and the long-term value of your investment.
Treat yourself to the luxury of a unique property where comfort and modernity meet the serenity of the Laurentians. Contact us today to schedule a visit and discover all that this Grandmaison model has to offer.
Building Features:
- Style: Detached
- Basement: 6 feet and more, Unfinished
- Bathroom: Separate shower
- Foundation: Poured concrete
- Garage: Double width or more, Built-in
- Lot: Wooded
- Parking: Driveway, Garage
- Proximity: Highway, Daycare centre, Golf, Park, Bicycle path, Elementary school, Alpine skiing, High school, Cross-country skiing, Snowmobile trail, ATV trail, Public transportation
- Roofing: Sheet metal
- Siding: Aluminum, Pressed fibre
- Topography: Flat
- Window Type: Casement
- Windows: PVC
- Heating System: Forced air, Electric baseboard units
- Heating Energy: Electricity
- Water Supply: Artesian well
- Sewage System: Disposal field, Septic tank
Taxes:
- Municipal Tax: $0
- School Tax: $0
- Annual Tax Amount: $0
Property Features:
- Bedrooms: 2+2
- Bathrooms: 2
- Floor Space (approx): 1660.0 Square Feet
- Lot Size: 4121.30 Square Metres
- Zoning: RESI
- No. of Parking Spaces: 4
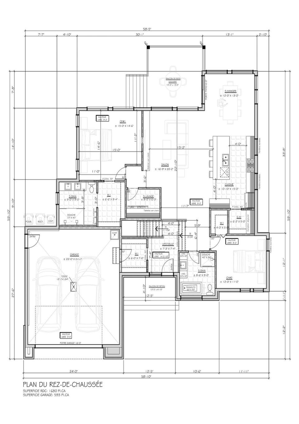
Rooms:
- Foyer Ground Level 2.21 m x 2.24 m 7.3 ft x 7.4 ft Flooring: Ceramic
- Kitchen Ground Level 3.30 m x 4.57 m 10.10 ft x 15.0 ft Flooring: Wood
- Dining Ground Level 3.66 m x 3.96 m 12.0 ft x 13.0 ft Flooring: Wood
- Living Ground Level 5.11 m x 6.15 m 16.9 ft x 20.2 ft Flooring: Wood
- Primary Bedroom Ground Level 4.57 m x 4.42 m 15.0 ft x 14.6 ft Flooring: Wood
- Bathroom Ground Level 2.74 m x 2.74 m 9.0 ft x 9.0 ft Flooring: Ceramic
- Bedroom Ground Level 3.66 m x 3.35 m 12.0 ft x 11.0 ft Flooring: Wood
- Bathroom Ground Level 2.59 m x 2.74 m 8.6 ft x 9.0 ft Flooring: Ceramic
- Laundry Ground Level 2.44 m x 1.83 m 8.0 ft x 6.0 ft Flooring: Ceramic
- Other Ground Level 1.83 m x 2.13 m 6.0 ft x 7.0 ft Flooring: Ceramic
- Family - Irregular Basement Level 13.34 m x 12.55 m 43.9 ft x 41.2 ft Flooring: Concrete
Convert Measurement to:
Data provided by: Centris - 600 Ch Du Golf, Ile -Des -Soeurs, Quebec H3E 1A8
All information displayed is believed to be accurate but is not guaranteed and should be independently verified. No warranties or representations are made of any kind. Copyright© 2021 All Rights Reserved.
Market Price Trends
Location of Rue Johannsen, Prévost, QC, J0R 1T0
Demographic Information of Rue Johannsen, Prévost, QC, J0R 1T0
Life Stage
Growing FamiliesEmployment Type
MixedAverage Household Income
$134,296.04Average Number of Children
1.97Household Population
Household Structure
Age of Population
Education
Education Level
No certificate/diploma/degree
10.5 %High school certificate or equivalent
24.52 %Apprenticeship trade certificate/diploma
13.57 %College/non-university certificate
29.09 %University certificate (below bachelor)
0.02 %University Degree
22.31 %Commuter
Travel To Work
By Car
98.31 %By Public Transit
0.38 %By Walking
0.01 %By Bicycle
0.01 %By Other Methods
1.29 %Cultural Diversity
Knowledge of Official Language
Mother Tongue
Building Information
Building Type
Apartments (Low and High Rise)
0.05 %Houses
99.95 %








































