Montréal (Ville-Marie) QC, H2L 3J9
Property Information:
Come discover this elegant, contemporary-inspired 2-bedroom condo ideally located close to all amenities, transports, restaurants, cafes, and shops. Completely redone and renovated in 2017, this corner unit offers space, comfort, refinement, and tranquility: 9-foot ceilings, hardwood floors, renovated kitchen and bathroom, recessed lighting, air conditioning, and oversized windows for extra light. You'll enjoy an exceptional setting on the edge of Marcelle Barthe Park with no neighbors behind or to the right! Beaudry and Berri-UQAM metro stations are an 8-minute walk away. Ask for a showing today!
Welcome to 1853 Wolfe!
Come and enjoy this property
+ Exceptional brightness thanks to generous window area and 9-foot ceilings
+ A level of finish rarely seen on the market: completely renovated in 2017 with high-end materials
OPEN-CONCEPT GROUND FLOOR
+ Open living area, bathed in natural light thanks to windows on three sides and 9-foot ceilings
+ Modern, sleek kitchen with polished concrete countertops, dining island, and plenty of storage
+ Direct access to the large back deck from the kitchen: perfect for outdoor dining
+ Cozy open-concept living room
+ Spacious dining room integrated into the living area
+ Ideally located secondary bedroom with ample storage and office space
+ Full bathroom with heated floors
+ Ample storage space
EXCEPTIONAL OUTDOOR SPACES
+ Intimate and well-appointed rear terrace with park views, connected to the kitchen and dining room
CENTRAL LOCATION
+ Ideally located between Old Montreal and the Plateau Mont-Royal
+ Within walking distance of the Berri-UQAM (8 min walk) and Beaudry (7 min walk) metro stations
+ Close walking distance to renowned restaurants, neighborhood cafes, local shops, grocery stores, community garden, art gallery, and concert hall (Usine C).
+ Well-managed condominium with contingency fund and self-insurance fund
Inclusions: All fixtures, lightings, water heater, dishwasher, refrigerator
Building Features:
- Style: Apartment
- Animal types: Cats allowed, Dogs allowed
- Basement: Crawl space
- Building amenity and common areas: Balcony/terrace, Yard
- Distinctive Features: No rear neighbours
- Lot: Fenced, Bordered by hedges
- Parking: License tag
- Property or unit amenity: Wall-mounted air conditioning, Private yard, Air exchange system, Outside storage, Inside storage, Wall-mounted heat pump
- Proximity: CEGEP, Daycare centre, Hospital, Metro, Park, Bicycle path, Elementary school, Réseau Express Métropolitain (REM), High school, Commuter train, Public transportation
- Roofing: Elastomeric membrane
- Siding: Brick, Concrete stone
- Size: 20.0 x 68.0 Feet
- Topography: Flat
- View: View of the city
- Window Type: Sliding, Casement
- Windows: PVC
- Heating System: Convection baseboards, Electric baseboard units
- Heating Energy: Electricity
- Water Supply: Municipality
- Sewage System: Municipality
Taxes:
- Municipal Tax: $2,933
- School Tax: $376
- Annual Tax Amount: $3,309
Expenses:
- Condo Fees: $290 Monthly
- Electric: $1,562
Property Assessemnt:
- Lot Assessment: $80,800
- Building Assessment: $442,000
- Total Assessment: $522,800
Property Features:
- Bedrooms: 2
- Bathrooms: 1
- Built in: 1917
- Floor Space (approx): 896.0 Square Feet
- Irregular: Yes
- Lot Depth: 70.0 Feet
- Lot Frontage: 20.0 Feet
- Lot Size: 1403.00 Square Feet
- Zoning: RESI
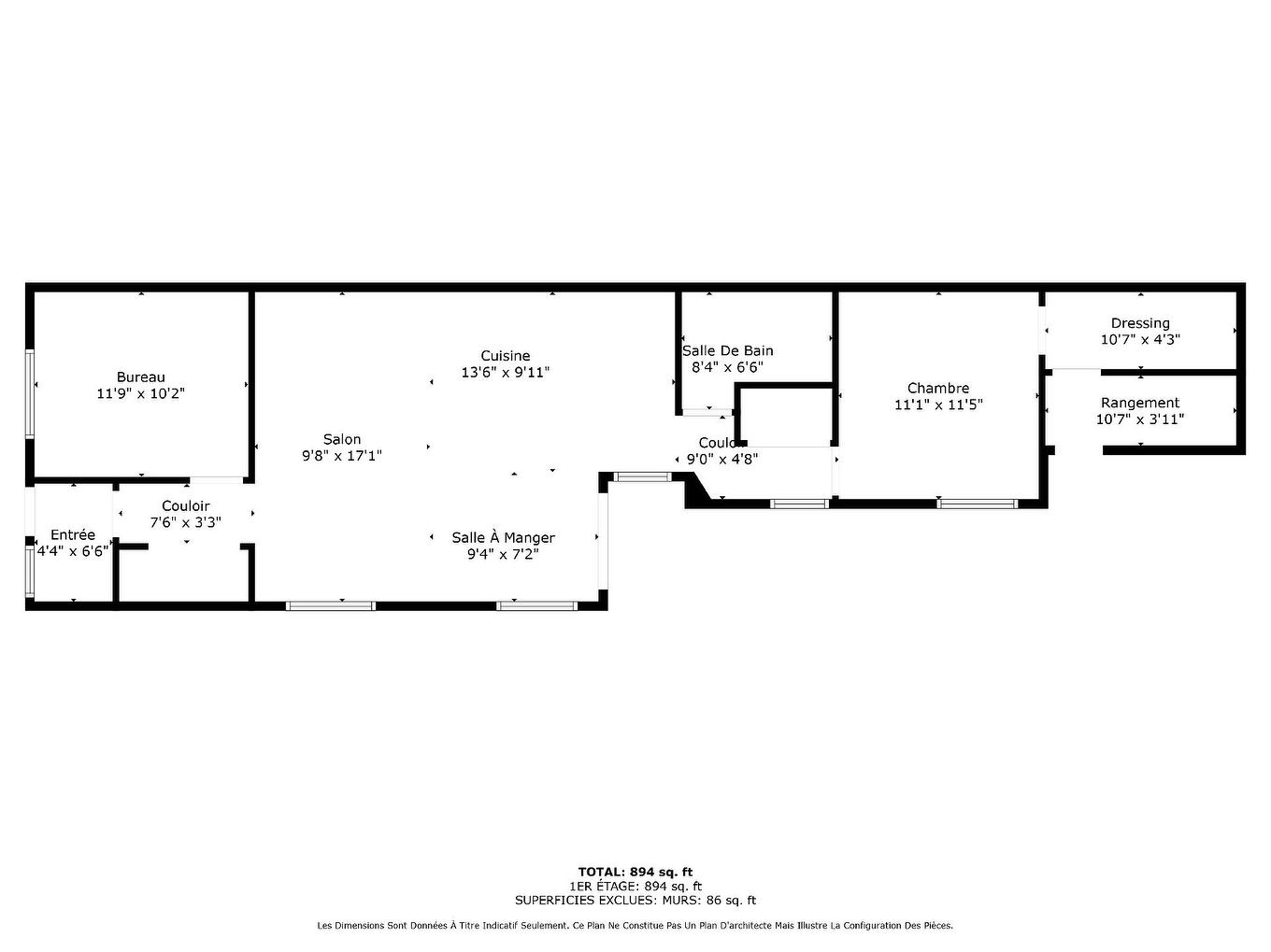
Rooms:
- Foyer - Irregular Ground Level 1.98 m x 1.65 m 6.6 ft x 5.5 ft Flooring: Ceramic
- Bedroom Ground Level 3.66 m x 3.10 m 12 ft x 10.2 ft Flooring: Wood
- Living Ground Level 5.21 m x 3.05 m 17.1 ft x 10 ft Flooring: Wood
- Dining Ground Level 2.87 m x 2.26 m 9.5 ft x 7.5 ft Flooring: Wood
- Kitchen Ground Level 4.09 m x 3.05 m 13.5 ft x 10 ft Flooring: Wood
- Bathroom Ground Level 2.57 m x 1.98 m 8.5 ft x 6.6 ft Flooring: Ceramic
- Storage Ground Level 1.52 m x 1.22 m 5 ft x 4 ft Flooring: Wood
- Primary Bedroom Ground Level 3.48 m x 3.40 m 11.5 ft x 11.2 ft Flooring: Wood
- Walk-in Closet Ground Level 3.23 m x 1.35 m 10.7 ft x 4.5 ft Flooring: Wood
- Storage Ground Level 3.23 m x 1.22 m 10.7 ft x 4 ft Flooring: Concrete
Convert Measurement to:
Data provided by: Centris - 600 Ch Du Golf, Ile -Des -Soeurs, Quebec H3E 1A8
All information displayed is believed to be accurate but is not guaranteed and should be independently verified. No warranties or representations are made of any kind. Copyright© 2021 All Rights Reserved.
Market Price Trends
Location of 1853 Rue Wolfe, Montréal (Ville-Marie), QC, H2L 3J9
Demographic Information of 1853 Rue Wolfe, Montréal (Ville-Marie), QC, H2L 3J9
Life Stage
Young SinglesEmployment Type
Service Sector/White CollarAverage Household Income
$99,110.22Average Number of Children
1.58Household Population
Household Structure
Age of Population
Education
Education Level
No certificate/diploma/degree
10.94 %High school certificate or equivalent
17.56 %Apprenticeship trade certificate/diploma
7.92 %College/non-university certificate
16.69 %University certificate (below bachelor)
3.98 %University Degree
42.9 %Commuter
Travel To Work
By Car
21.95 %By Public Transit
41.31 %By Walking
26.31 %By Bicycle
6.36 %By Other Methods
4.06 %Cultural Diversity
Knowledge of Official Language
Mother Tongue
Building Information
Building Type
Apartments (Low and High Rise)
96.24 %Houses
3.76 %



















































