Welland ON, L3B 1L8
Property Information:
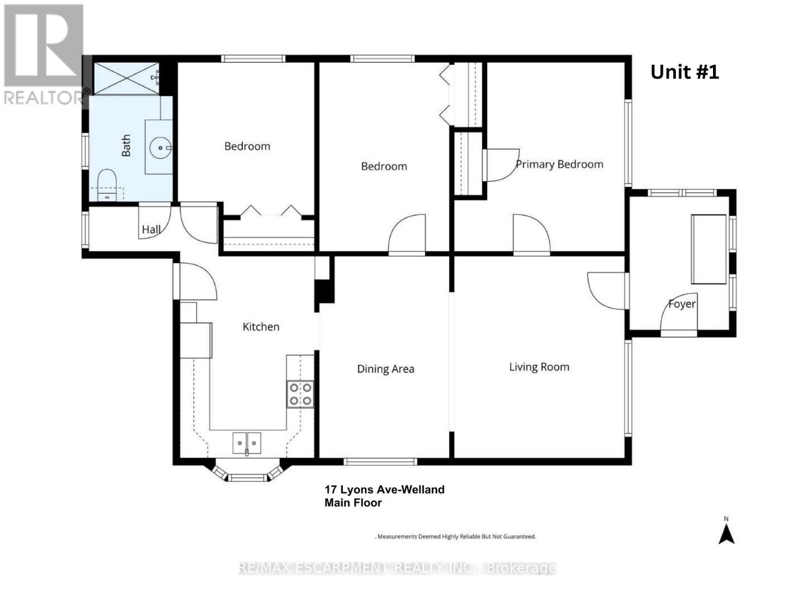
Solid Triplex Investment Opportunity in a Convenient Welland Location. This Well-Maintained 200 AMP Multi-Unit Property Offers a Versatile Layout with Strong Income Potential and Added Bonus Space. Unit #1 (Main Level) Features a Spacious 3-Bedroom Layout with a 4-Piece Bathroom, Full Kitchen, Dining Room, Living Room, and a Bright Sunroom, Making it Ideal for an Owner-Occupier or Premium Rental Unit. Units #2 and #3 are Located Upstairs and Each Offer a 1-Bedroom Layout with a Kitchen, Living room, and 4-Piece Bathroom, Providing Efficient and Desirable Rental Configurations. All Three Units Share Common Laundry Facilities Located in the Basement. Bonus: The Basement also Includes an Additional Kitchen, 3-Piece Bathroom, and a Separate Room with the Potential for its Own Laundry, Offering Excellent Flexibility for Extended Family Use, Future Value-Add Opportunities, or Enhanced Functionality . Conveniently Located Close to Amenities, Transit, Schools, and Services, this Property is Well-Suited for Investors Looking to Add a Stable Multi-Residential Asset to Their Portfolio or Buyers Seeking a Live-in Investment with Multiple Income Streams. (id:27)
Building Features:
- Style: Multiplex
- Building Type: Triplex
- Basement Development: Finished
- Basement Type: Full
- Exterior Finish: Aluminum siding, Concrete Block, Vinyl siding
- Fire Protection: Smoke Detectors
- Floor Space: 2000 - 2500 sqft
- Foundation Type: Block
- Heating Type: Forced air
- Heating Fuel: Natural gas
- Cooling Type: Central air conditioning
- Appliances: Dryer, Microwave, Stove, Washer, Refrigerator
Property Features:
- Property Type: Multi-family
- Bedrooms: 5
- Bathrooms: 4
- Amenities Nearby: Hospital, Park, Public Transit
- Community Features: School Bus
- Features: Flat site
- Fence Type: Partially fenced
- Floor Space (approx): 2000 - 2500 Square Feet
- Irregular: Yes
- Lot Depth: 100 Feet
- Lot Frontage: 45 Feet
- Lot Size: 45 x 100 FT
- Structure Type: Shed
- Utility Type: Hydro - Installed, Cable - Available, Sewer - Installed
- Zoning: RL1
- Sewer: Sanitary sewer
- Parking Type: No Garage
- No. of Parking Spaces: 3
Rooms:
- Family 2nd Level 3.66 m x 4.37 m 12.01 ft x 14.34 ft
- 4th Bedroom 2nd Level 3.89 m x 3.79 m 12.76 ft x 12.43 ft
- Bathroom 2nd Level 2.54 m x 1.96 m 8.33 ft x 6.43 ft
- Kitchen 2nd Level 2.91 m x 4.27 m 9.55 ft x 14.01 ft
- Living 2nd Level 3.66 m x 4.27 m 12.01 ft x 14.01 ft
- 5th Bedroom 2nd Level 2.92 m x 3.78 m 9.58 ft x 12.40 ft
- Bathroom 2nd Level 1.89 m x 3.04 m 6.20 ft x 9.97 ft
- Kitchen 2nd Level 2.84 m x 4.37 m 9.32 ft x 14.34 ft
- Kitchen Basement Level 2.54 m x 4.12 m 8.33 ft x 13.52 ft
- Recreation Room Basement Level 4.73 m x 4.12 m 15.52 ft x 13.52 ft
- Den Basement Level 3.73 m x 4.12 m 12.24 ft x 13.52 ft
- Laundry Basement Level 1.81 m x 1.83 m 5.94 ft x 6.00 ft
- Bathroom Basement Level 1.81 m x 3.15 m 5.94 ft x 10.33 ft
- Laundry Basement Level 2.87 m x 4.12 m 9.42 ft x 13.52 ft
- Utility Basement Level 2.84 m x 4.12 m 9.32 ft x 13.52 ft
- Foyer Main Level 2.80 m x 1.07 m 9.19 ft x 3.51 ft
- Kitchen Main Level 3.24 m x 4.37 m 10.63 ft x 14.34 ft
- Dining Main Level 2.82 m x 4.37 m 9.25 ft x 14.34 ft
- Living Main Level 3.69 m x 4.37 m 12.11 ft x 14.34 ft
- Sun Room Main Level 2.16 m x 2.89 m 7.09 ft x 9.48 ft
- Primary Bedroom Main Level 3.69 m x 4.08 m 12.11 ft x 13.39 ft
- 2nd Bedroom Main Level 2.82 m x 4.09 m 9.25 ft x 13.42 ft
- 3rd Bedroom Main Level 2.96 m x 3.31 m 9.71 ft x 10.86 ft
- Bathroom Main Level 1.82 m x 3.02 m 5.97 ft x 9.91 ft
Convert Measurement to:
⚠ Potential Investment Performance
There is not enough data on this property to provide a potential investment performance at this time, please click the button below for an in-person valuation
Market Price Trends
Location of 17 LYONS AVENUE, Welland, Ontario, L3B 1L8
Demographic Information of 17 LYONS AVENUE, Welland, Ontario, L3B 1L8
Life Stage
Midlife FamiliesEmployment Type
Blue Collar/Primary, Blue Collar/Service SectorAverage Household Income
$89,795.62Average Number of Children
1.67Household Population
Household Structure
Age of Population
Education
Education Level
No certificate/diploma/degree
22.29 %High school certificate or equivalent
33.54 %Apprenticeship trade certificate/diploma
9.08 %College/non-university certificate
27.16 %University Degree
7.93 %Commuter
Travel To Work
By Car
90.56 %By Public Transit
1.6 %By Walking
0.92 %By Bicycle
0.0 %By Other Methods
6.92 %Cultural Diversity
Knowledge of Official Language
Mother Tongue
Building Information
Building Type
Apartments (Low and High Rise)
26.9 %Houses
73.1 %

























