North Grenville ON, L3Z 3E6
Property Information:
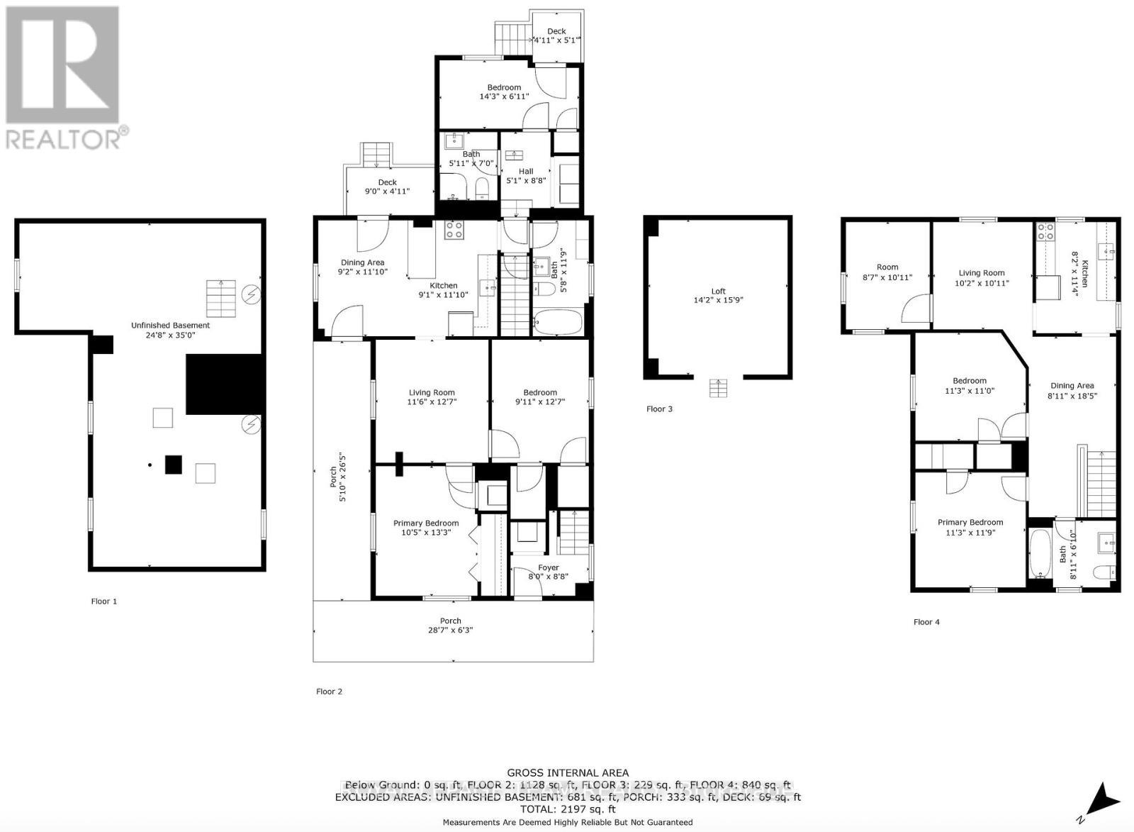
Looking for an exceptional investment opportunity? This legal duplex is located in Kemptville, just a 40-minute drive from Ottawa. The property has been renovated while preserving its original charm. We have 2 spacious units and although it's a legal duplex, it's ideal for multigenerational families with a home-based business. The main level has 2 large bedrooms, an eat-in kitchen, and a creative space with a bonus room area. There's a separate entrance that can be used for a private business like a salon, spa, office, Airbnb, etc. The upper level can function as a 3 bedroom unit or a 2 bedroom + den/office. Each unit has its own hydro meter, water meter, gas furnace, and hot water tank. The property also offers 4 parking spots. Whether you're an investor or a family seeking a spacious home with rental income and business/office potential, this property is an excellent option. Excellent location ... Walking distance to shops, transit, parks and recreation, and a quick drive to the highway. Some images have been virtually staged. (id:27)
Building Features:
- Style: Duplex
- Building Type: Duplex
- Amenities: Separate Heating Controls
- Basement Development: Other, See Remarks
- Basement Type: N/A
- Floor Space: 1500 - 2000 sqft
- Foundation Type: Stone
- Heating Type: Forced air
- Heating Fuel: Natural gas
- Cooling Type: None
- Appliances: Dryer, Hood Fan, Two stoves, Washer
Property Features:
- Property Type: Multi-family
- Bedrooms: 4
- Bathrooms: 3
- Floor Space (approx): 1500 - 2000 Square Feet
- Irregular: Yes
- Lot Depth: 162.2 Feet
- Lot Frontage: 40.7 Feet
- Lot Size: 40.7 x 162.3 FT
- Sewer: Sanitary sewer
- Parking Type: No Garage
- No. of Parking Spaces: 4
Rooms:
- Dining 2nd Level 5.61 m x 2.71 m 18.41 ft x 8.89 ft
- Kitchen 2nd Level 3.50 m x 2.49 m 11.48 ft x 8.17 ft
- Living 2nd Level 3.09 m x 3.32 m 10.14 ft x 10.89 ft
- Primary Bedroom 2nd Level 3.58 m x 3.42 m 11.75 ft x 11.22 ft
- Bathroom 2nd Level 2.71 m x 2.08 m 8.89 ft x 6.82 ft
- 2nd Bedroom 2nd Level 3.35 m x 3.42 m 10.99 ft x 11.22 ft
- Den 2nd Level 3.33 m x 2.62 m 10.93 ft x 8.60 ft
- Dining Main Level 3.61 m x 2.79 m 11.84 ft x 9.15 ft
- Kitchen Main Level 3.61 m x 2.77 m 11.84 ft x 9.09 ft
- Living Main Level 3.84 m x 3.51 m 12.60 ft x 11.52 ft
- Primary Bedroom Main Level 4.04 m x 3.18 m 13.25 ft x 10.43 ft
- 2nd Bedroom Main Level 3.84 m x 3.02 m 12.60 ft x 9.91 ft
- Bathroom Main Level 2.07 m x 1.73 m 6.79 ft x 5.68 ft
- Bathroom Main Level 2.13 m x 1.80 m 6.99 ft x 5.91 ft
- Foyer Main Level 2.64 m x 1.55 m 8.66 ft x 5.09 ft
- Den Main Level 4.34 m x 2.11 m 14.24 ft x 6.92 ft
- Foyer Main Level 2.64 m x 2.43 m 8.66 ft x 7.97 ft
Convert Measurement to:
⚠ Potential Investment Performance
There is not enough data on this property to provide a potential investment performance at this time, please click the button below for an in-person valuation
Market Price Trends
Location of 14-16 CLOTHIER STREET W, North Grenville, Ontario, L3Z 3E6
Demographic Information of 14-16 CLOTHIER STREET W, North Grenville, Ontario, L3Z 3E6
Life Stage
Older Parents, Younger KidsEmployment Type
MixedAverage Household Income
$113,442.27Average Number of Children
1.78Household Population
Household Structure
Age of Population
Education
Education Level
No certificate/diploma/degree
14.17 %High school certificate or equivalent
33.35 %Apprenticeship trade certificate/diploma
4.65 %College/non-university certificate
27.35 %University certificate (below bachelor)
2.88 %University Degree
17.6 %Commuter
Travel To Work
By Car
84.44 %By Public Transit
0.0 %By Walking
9.04 %By Bicycle
0.0 %By Other Methods
6.52 %Cultural Diversity
Knowledge of Official Language
Mother Tongue
Building Information
Building Type
Apartments (Low and High Rise)
13.69 %Houses
86.31 %














































