London East (East F) ON, N5Y 2R5
Property Information:
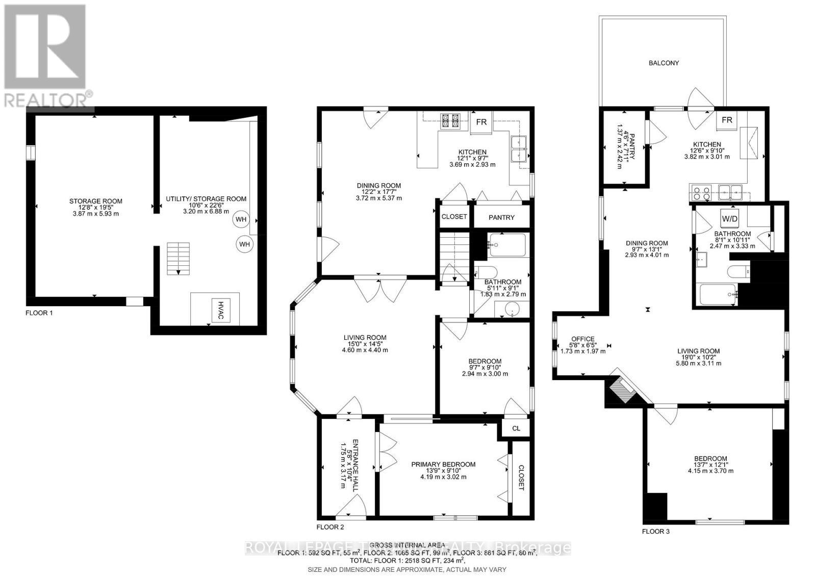
Welcome to 737 William Street, a beautiful legal duplex that could also serve as an incredible single-family home, offering timeless character and modern versatility. On a private, mature treed lot, nestled between between historical Woodfield and Old North, this property combines charm, function, and flexibility. It's perfect and ready to go for multi-generational families, anyone seeking a home with income potential and makes a phenomenal long term investment. With parking for five vehicles, two in the front driveway and three more off the rear laneway, this home offers convenience and space rarely found in the center city. The main floor unit features two spacious bedrooms and showcases the homes character with original wood trim, high ceilings, and an abundance of natural light. The inviting layout includes access to a full basement, providing excellent storage. Step outside to enjoy the incredible covered front porch for morning coffees, or the expansive deck that stretches across the whole back of the house and wraps around the side. An ideal spot to relax, entertain, and listen to the birds in the peaceful tranquility. The upper one-bedroom apartment is bright and charming, highlighted by a gas fireplace, large windows, and a skylight that fills the space with natural light. It offers a private deck overlooking the trees and gardens, a separate dining area, a cozy living room, and an office workstation nook, perfect for todays work from home lifestyle. Additional features include two fridges, two stoves, one dishwasher, two washers, two dryers, and a garden shed for extra storage. From the moment you step through the solid wood front door, you'll be captivated by the warmth, detail, and character that make this property truly special. With its versatility, great location, and undeniable charm, 737 William Street is a rare opportunity to own a home that fits your lifestyle, whether as a stunning single-family residence or perhaps an income-generating duplex. (id:27)
Building Features:
- Style: Duplex
- Building Type: Duplex
- Basement Type: Full
- Exterior Finish: Brick
- Fireplace: Yes
- Floor Space: 1500 - 2000 sqft
- Foundation Type: Poured Concrete
- Heating Type: Forced air
- Heating Fuel: Natural gas
- Cooling Type: Central air conditioning
- Appliances: Dishwasher, Dryer, Two stoves, Window Coverings
Property Features:
- Property Type: Multi-family
- Bedrooms: 3
- Bathrooms: 2
- Floor Space (approx): 1500 - 2000 Square Feet
- Irregular: Yes
- Lot Depth: 127.0 Feet
- Lot Frontage: 40.1 Feet
- Lot Size: 40.1 x 127 FT
- Zoning: R2-2
- Sewer: Sanitary sewer
- Parking Type: No Garage
- No. of Parking Spaces: 5
Rooms:
- Utility Basement Level 3.20 m x 6.88 m 10.50 ft x 22.57 ft
- Other Basement Level 3.87 m x 5.93 m 12.70 ft x 19.46 ft
- Living Main Level 4.60 m x 4.40 m 15.09 ft x 14.44 ft
- Dining Main Level 3.72 m x 5.37 m 12.20 ft x 17.62 ft
- Kitchen Main Level 3.69 m x 2.93 m 12.11 ft x 9.61 ft
- Primary Bedroom Main Level 4.19 m x 3.02 m 13.75 ft x 9.91 ft
- Bedroom Main Level 2.94 m x 3.00 m 9.65 ft x 9.84 ft
- Bathroom Main Level 1.83 m x 2.79 m 6.00 ft x 9.15 ft
- Office Upper Level 1.73 m x 1.97 m 5.68 ft x 6.46 ft
- Bathroom Upper Level 2.47 m x 3.33 m 8.10 ft x 10.93 ft
- Pantry Upper Level 1.37 m x 2.42 m 4.49 ft x 7.94 ft
- Living Upper Level 5.80 m x 3.11 m 19.03 ft x 10.20 ft
- Dining Upper Level 2.93 m x 4.01 m 9.61 ft x 13.16 ft
- Kitchen Upper Level 3.82 m x 3.01 m 12.53 ft x 9.88 ft
- 2nd Bedroom Upper Level 4.15 m x 3.70 m 13.62 ft x 12.14 ft
Convert Measurement to:
⚠ Potential Investment Performance
There is not enough data on this property to provide a potential investment performance at this time, please click the button below for an in-person valuation
Market Price Trends
Location of 1 & 2 - 737 WILLIAM STREET N, London East (East F), Ontario, N5Y 2R5
Demographic Information of 1 & 2 - 737 WILLIAM STREET N, London East (East F), Ontario, N5Y 2R5
Life Stage
Young CouplesEmployment Type
Service Sector/White CollarAverage Household Income
$114,702.00Average Number of Children
1.58Household Population
Household Structure
Age of Population
Education
Education Level
No certificate/diploma/degree
10.47 %High school certificate or equivalent
26.45 %Apprenticeship trade certificate/diploma
4.26 %College/non-university certificate
25.26 %University certificate (below bachelor)
1.37 %University Degree
32.18 %Commuter
Travel To Work
By Car
66.72 %By Public Transit
17.84 %By Walking
12.93 %By Bicycle
2.51 %By Other Methods
0.0 %Cultural Diversity
Knowledge of Official Language
Mother Tongue
Building Information
Building Type
Apartments (Low and High Rise)
34.96 %Houses
65.04 %








































