House In Westphal, Dartmouth, Nova Scotia
$499,000 QuickQuoteTM:
QuickQuoteTM provides an estimated range of a property’s current market value and is based on local market insights and information available on the property. QuickQuoteTM is not an appraisal or a substitute for an in-person valuation done by an experienced professional. Learn more or connect with an expert
$377K - $505K
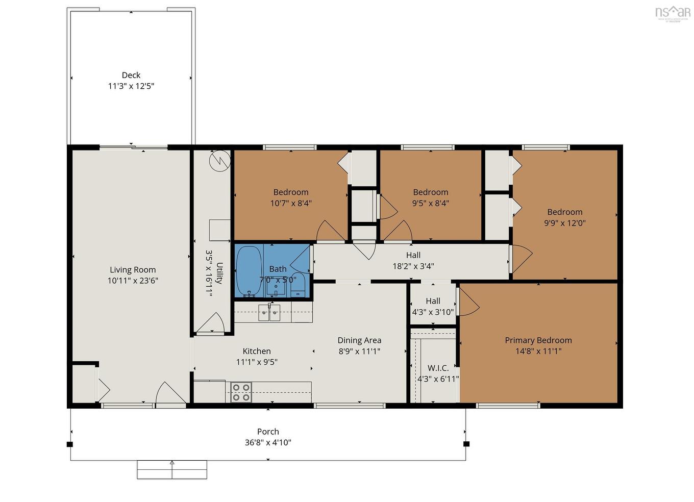
4 Beds
1 Bath
-
Details
-
Map
-
Demographics
-
Street View
-
Get Directions
-
Advertising





























